top of page

Two Distinct Buildings Designed in Context with Each Other & Their Surroundings
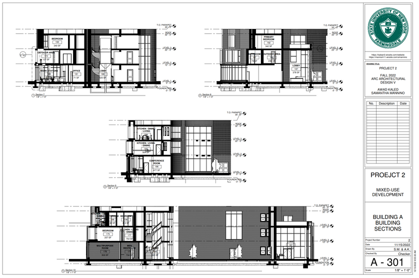
We, my design building firm partner, have been hired to design and prepare presentation and construction drawings for a new building complex that is comprised of a minimum of two buildings. The complex includes an architectural firm office, a construction firm office, and a minimum of four apartments. The site is located at 62 - 76 main street, Bay Shore, NY 11706, and is currently the "Local Burger" and the former "sunny Buffet" on the corner.
Mixed-Use Development
New Lincoln Showroom
Site Development & Construction Drawing Set
Presentation Drawings




Final Design Renderings
bottom of page



























